





Kinderhaus St. Anna
Baldham, Vaterstetten
Neubau
LAGE
Mit ca. 80% Baumbestand weißt da Grundstück einen waldähnlichen Charakter auf.
Um die Fällung von Bäumen auf ein notwendiges Maß reduzieren zu können, wurden zahlreiche Varianten in Form und Geschossigkeit unter Berücksichtigung der erforderlichen Orientierungen der jeweiligen Nutzungseinheiten untersucht. Als Favorit hinsichtlich Flächenverbrauch, Orientierung sowie Kompaktheit hat sich die Variante Quadrat herausgestellt.
STÄDTEBAU
Das geplante Gebäude unterliegt keinen Anforderungen an eine städtebauliche Einbindung und darf auf Grund seiner Nutzung und Ausrichtung ein Solitär darstellen. Die KiTa liegt nicht am, sondern mitten im Wald.
FORM
Das Quadrat als kompakteste Form nach dem Kreis weist viele Vorteile auf:
– Sehr günstiges Verhältnis Hüllfläche zu Volumen, d.h. energetisch und wirtschaftlich sehr positive Kennwerte.
– Geringe Spannweiten, einfache und klare Struktur der Tragkonstruktion, d.h. eine wirtschaftliche Bauweise ist zu erwarten.
– Hohe Nutzerfreundlichkeit durch kurze Wege.
Das Dach ist als leichtgeneigtes Dach mit Blechdeckung und Dachlaterne mit integrierten Oberlichtern, für die natürliche Be- und Entlüftung geplant.
GESTALTUNG I MATERIALITÄT
Auffällig ist die Gestaltung der überdachten Terrasse im Obergeschoss. Das Fachwerk prägt die Nordseite der Gebäudefassaden.
Gespielt wird mit einer Kombination aus vorvergrauten Holz- und eloxierten Metallfassade.
Durch die Reduzierung auf zwei Materialien für die hellen und dunklen Bereiche entsteht ein zurückhaltende und zugleich spannendes, sehr hochwertiges Ersheinungsbild.
ERSCHLIESSUNG I ORGANISATION
Über den gedeckten Zugangsbereich „Das grüne Tor“ gelangt man zum ebenfalls gedeckten Eingangsbereich der Kindertagesstätte.
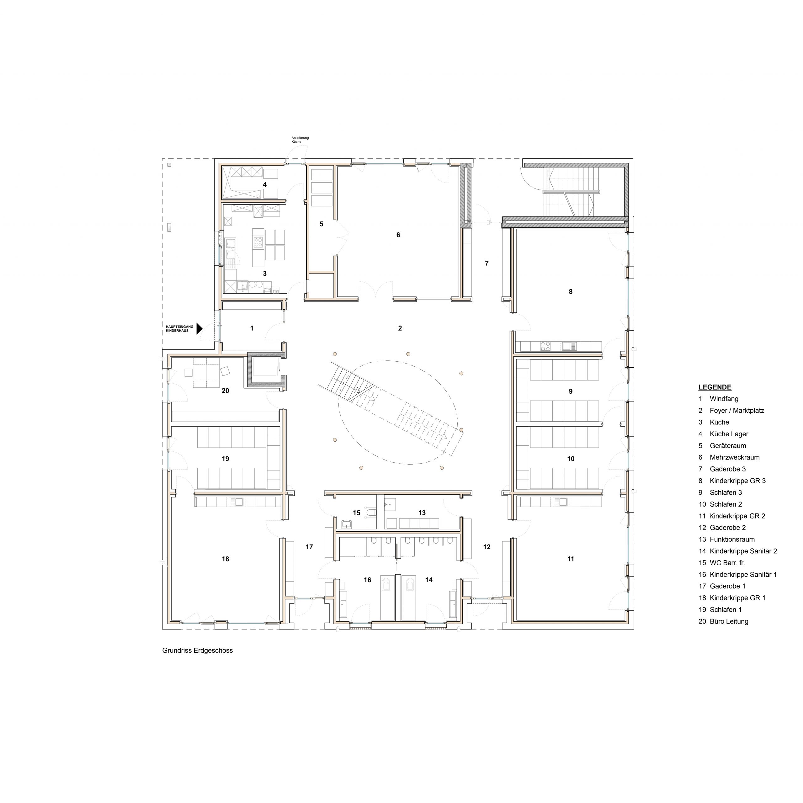
Die Zuwegung zur Küche ist durch eine separate Türe auf kurzem Weg gewährleistet. Nach Eintritt in das Gebäude über den Windfang etritt man die zentrale Halle als „Herz des Kinderhauses“ mit einem ovalen, den Baumkronen der umgebenden Bäume nachempfundenen Treppenauge samt geschwungener Freitreppe. Im Kontext mit den vielen Durchblicken wird der fließende Übergang Natur-Gebäude bzw. Innen-/Außenraum thematisiert. Zudem wird im Obergeschoss durch den gedeckten Spielbereich/ Fluchtweg eine zusätzliche Spielebene in den Baumkronen geschaffen.
Die Gruppenräume sind auf kurzem Weg direkt vom zentralen multifunktionalen Bereich der Halle als Herz des Hauses erschlossen und im südöstlichen bzw. südwestlichen Bereich positioniert. Die WC-Bereiche sind zentral zusammengefasst.
Die Garderoben dienen zusätzlich als Schmutzschleusen. Ergänzende Bereiche wie Mehrzweckraum, Küche, Personal etc. sind im nördlichen Bereich zu den lauten Spielflächen orientiert.
Auftraggeber / Bauherr
Gemeinde Vaterstetten
Leistungsphasen
1-9
Leistungszeitraum
seit 08/2021
Baukosten
Flächen
Bruttogesamtfläche : 1800 m2











